Мы в сети
HIDDEN CITY
HIDDEN CITY
Адрес: Индонезия, остров Бали, Убуд
Тип: Комплекс апартаментов
Работы: Стадия РД
Команда проекта: Тимур Шагин, Дарья Соколова
Описание проекта
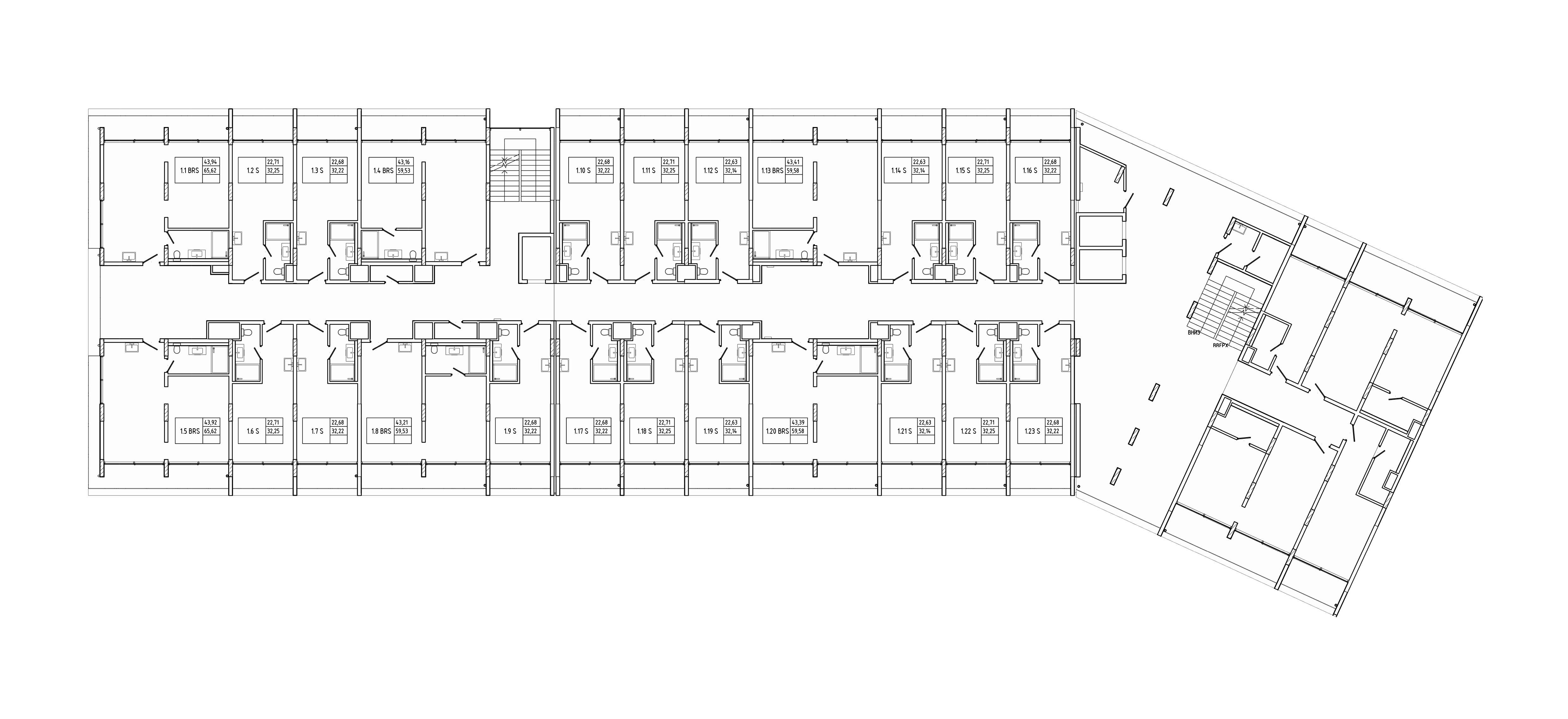
Комплекс апартаментов Hidden city, расположен в самом центре Убуда на острове Бали, комплекс включает себя 4 жилых этажа общей площадью апартаментов 4118 м2.
Выполнен в современной тропической архитектуре, учитывающей климатические особенности Бали. Объём здания формируется за счёт горизонтально вытянутых корпусов с выразительными плоскостями кровель, создающими глубокие теневые навесы и минимизирующими перегрев помещений.
Фасадная палитра основана на сочетании натуральных и долговечных материалов, характерных для регионального зодчества: Деревянные планкены из тропических пород (бангкирай/мербау) — используются в облицовке террас балконов, пергол и декоративных экранов. Тёплая древесная фактура смягчает визуальный образ и подчёркивает природный характер архитектуры. Штукатурные поверхности в светлой цветовой гамме — основа фасадов выполнена в оттенках «off-white» и «warm sand», что помогает отражать солнечный свет и поддерживать комфортный микроклимат.
Здание формирует современный премиальный образ, основанный на ряде тропических принципов: Большие панорамные остекления, защищённые горизонтальными ламелями, обеспечивают максимальные виды на участок и естественное освещение. Многоярусные террасы создающие дополнительные приватные зоны отдыха.
Система естественной вентиляции, интегрированная через открывающиеся фрагменты фасада, внутренние дворики и проходящие сквозные галереи. Пластика объёмов, построенная на контрасте монолитных плоскостей и лёгких деревянных элементов, подчёркивает динамику силуэта.
Облик комплекса сочетает в себе лаконичность современных форм и традиционные природные материалы, формируя узнаваемую архитектуру, гармоничную с окружающим ландшафтом Бали.
Реализованные кейсы
Торговый магазин
Подробнее
Гипермаркет «РемиСити»
Подробнее
Будем на связи